

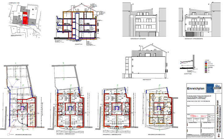
Im Herzen von Bad Hall stand ein altes Bürgerhaus.
Im ersten Schritt wurden sämtliche Sanierungsvatrianten durchgespielt. Der schlechte Allgemeinzustand, die Baufluchtlinien und die ungünstigen, weil zu hohen Geschoßhöhen ließen uns zu der Entscheidung kommen das Haus zu demolieren und an gleicher Stelle ein neues Niedrigstenergiehaus mit 4 Wohnung und einem Penthouse mit umlaufender Dachterrasse zu errichten.












